- Accueil
- > Péniches et bateaux
- > Opportunité rare d’aménagement d’une péniche Freycinet de 235 m² en vente à (…)
Opportunité rare d’aménagement d’une péniche Freycinet de 235 m² en vente à Levallois-Perret
Levallois-Perret / Île-de-FranceL’opportunité d’aménager une superbe péniche de 235 m2 selon ses propres envies avec tout le confort moderne, dans un environnement calme, naturel, tout en étant en ville.
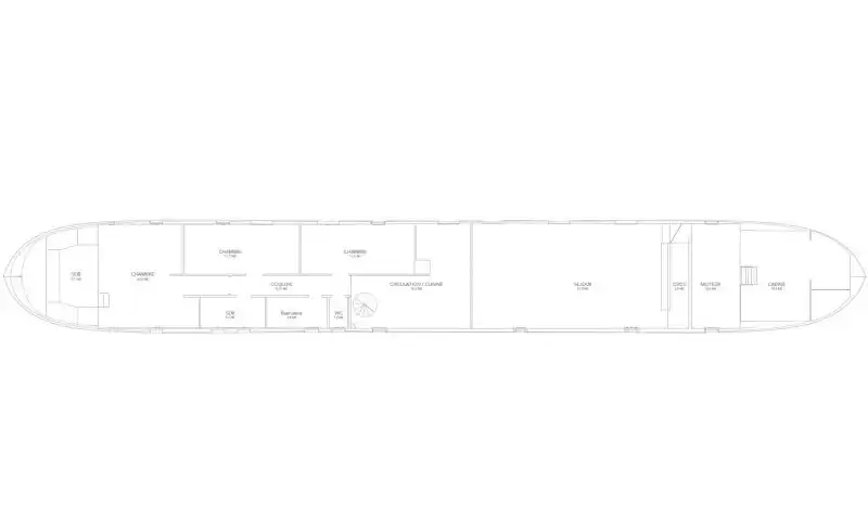
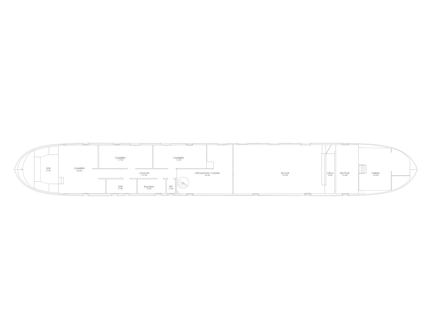
Cette péniche Freycinet de 1932, démotorisée, mesure 39.1 m de long pour 5,08 m de large. Amarrée à la limite de Neuilly, face à l’île de la Jatte, cette péniche bénéficie d’un emplacement très agréable sur un bras calme de la Seine mais néanmoins proche des commodités. Elle bénéficie d’un projet de réaménagement validé dont les plans sont fournis, permettant de créer jusqu’à 235 m² habitables.
📍 Localisation & cadre de vie
– Environnement calme et verdoyant dans un bras de la Seine
– Proximité immédiate commerces et transports avec le métro ligne 3, le transilien L, les bus et un accès rapide à La Défense
🧩Potentiel & modularité
– Opportunité rare de créer un bien sur-mesure
– Projet d’aménagement validé par les Voies Navigables de France (VNF) avec une surface habitable de 235 m² incluant une superstructure de 50 m², de grandes terrasses
– Projet d’architecte modulable selon les envies avec des espaces adaptés pour une famille, un artiste ou tout autre profil
🛠️ Structure & réglementaire
– Expertises très récentes avec attestations de conformité
– Double séjour traversant avec puits de lumière circulaire
– Suite parentale spacieuse
– Deux chambres supplémentaires
– Logement indépendant du marinier à l’arrière
– Volumes généreux, configuration fluide
– Prédisposition pour 4 salles de bain et de nombreux rangements
– Superstructure de 50 m² sur le pont supérieur
– Deux grandes terrasses entourant la superstructure
– Possibilité d’ajout d’une seconde passerelle
– Type : Péniche Freycinet à usage d’habitation
– Année de construction : 1932
– Longueur : 39.1 mètres
– Largeur : 5,08 mètres
– Surface habitable : Jusqu’à 235 m² (projet validé par les VNF)
– Nombre de chambres : Jusqu’à 4 chambres selon aménagement
– Nombre de salles d’eau : 4 salles de bain prévues dans le projet
– Chauffage : Pompe à chaleur
– Motorisation : Démotorisée
– État général : À aménager avec plans fournis – expertises techniques récentes fournies
– Pavillon : Français
– Mobilier : Non meublée
– Connexion : Raccordée à l’eau, l’électricité et Internet










